Woonoppervlakte
Circa 103 m²
Perceeloppervlakte
Circa 217 m²
Bouwjaar
Gebouwd in 1982
Aantal kamers
4 kamers (3 slaapkamers)

Alkenberg 23

4707 NS, Roosendaal (Noord-Brabant)

Welkom in deze fijne gezinswoning, gelegen in een kindvriendelijke woonwijk van Roosendaal. Hier woon je in een rustige omgeving met volop speelgelegenheid en toch dichtbij alle voorzieningen. Deze woning verrast je met een frisse uitstraling, een moderne keuken, een nette badkamer en zelfs een praktijkruimte in de tuin. Met maar liefst drie ruime slaapkamers én 8 zonnepanelen is dit een plek waar comfort, duurzaamheid en sfeer samenkomen. Plan snel die bezichtiging in, want dit wil je niet missen!

Entree
Je parkeert je auto gemakkelijk op de oprit of in de straat. Via de verzorgde voortuin stap je de woning binnen. In de hal vind je de meterkast, het toilet en de deur naar de woonkamer.

Wonen & Koken
De woonkamer voelt fris en ruim aan. Aan de voorzijde bevindt zich het zitgedeelte, perfect voor een gezellige hoekbank. Aan de achterzijde ligt de eethoek met aansluitend de open keuken. Dankzij de praktische indeling is er ook ruimte voor een kast tussen het zit- en eetgedeelte. De laminaatvloer zorgt voor een nette basis. De moderne keuken in U-opstelling is een echte eyecatcher: witte frontjes, een zwart blad en een strak betegelde achterwand in zwart geblokt patroon. Uiteraard is de keuken voorzien van alle apparatuur die je nodig hebt: kookplaat, afzuigkap, combi-oven, koelkast en vriezer. Via de keuken stap je zo de achtertuin in. De trap naar boven zit centraal in de woonkamer en is afgesloten met een deur. Extra opbergruimte vind je in de handige trapkast.

Slapen, Dromen & Douchen
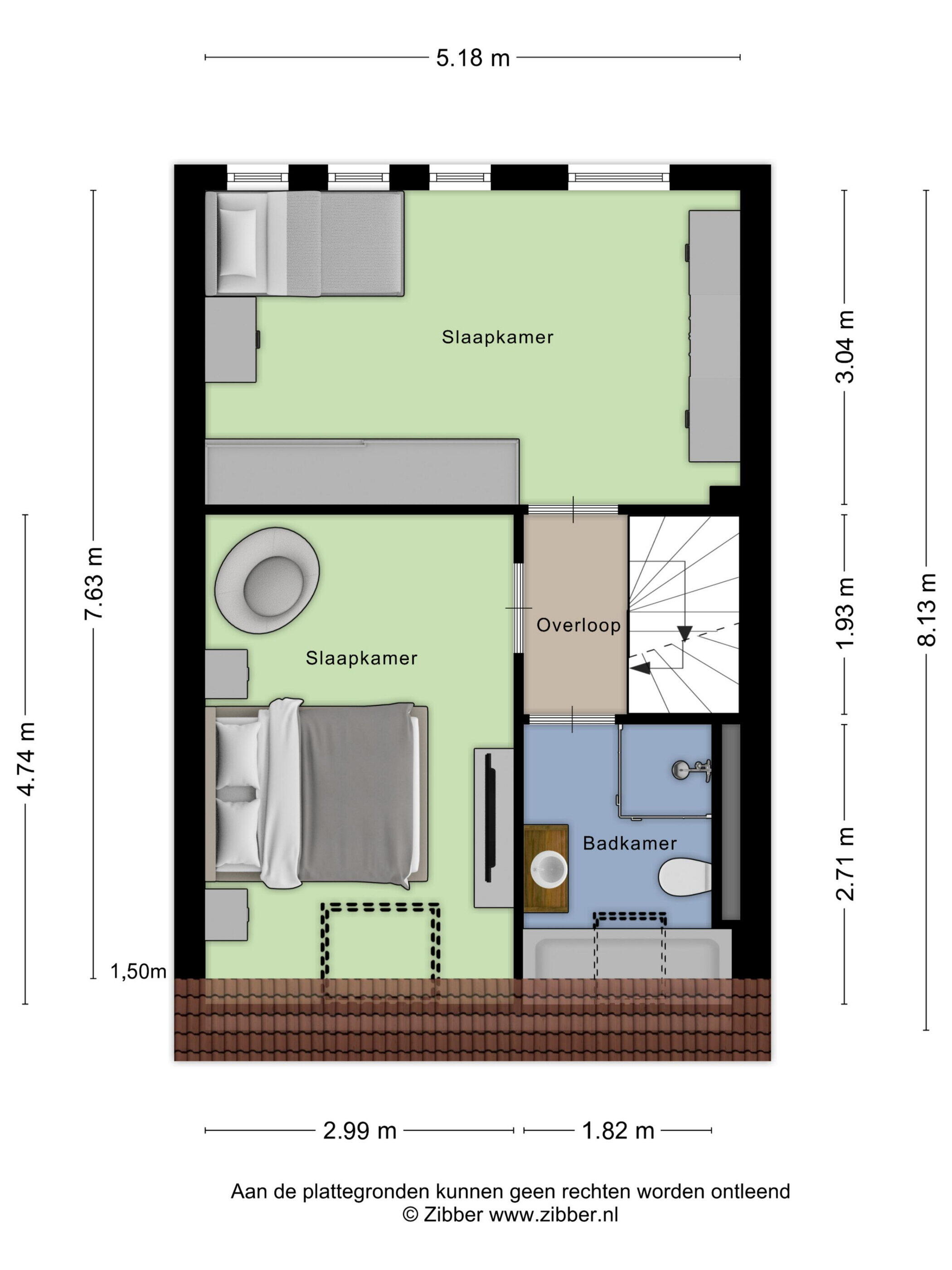
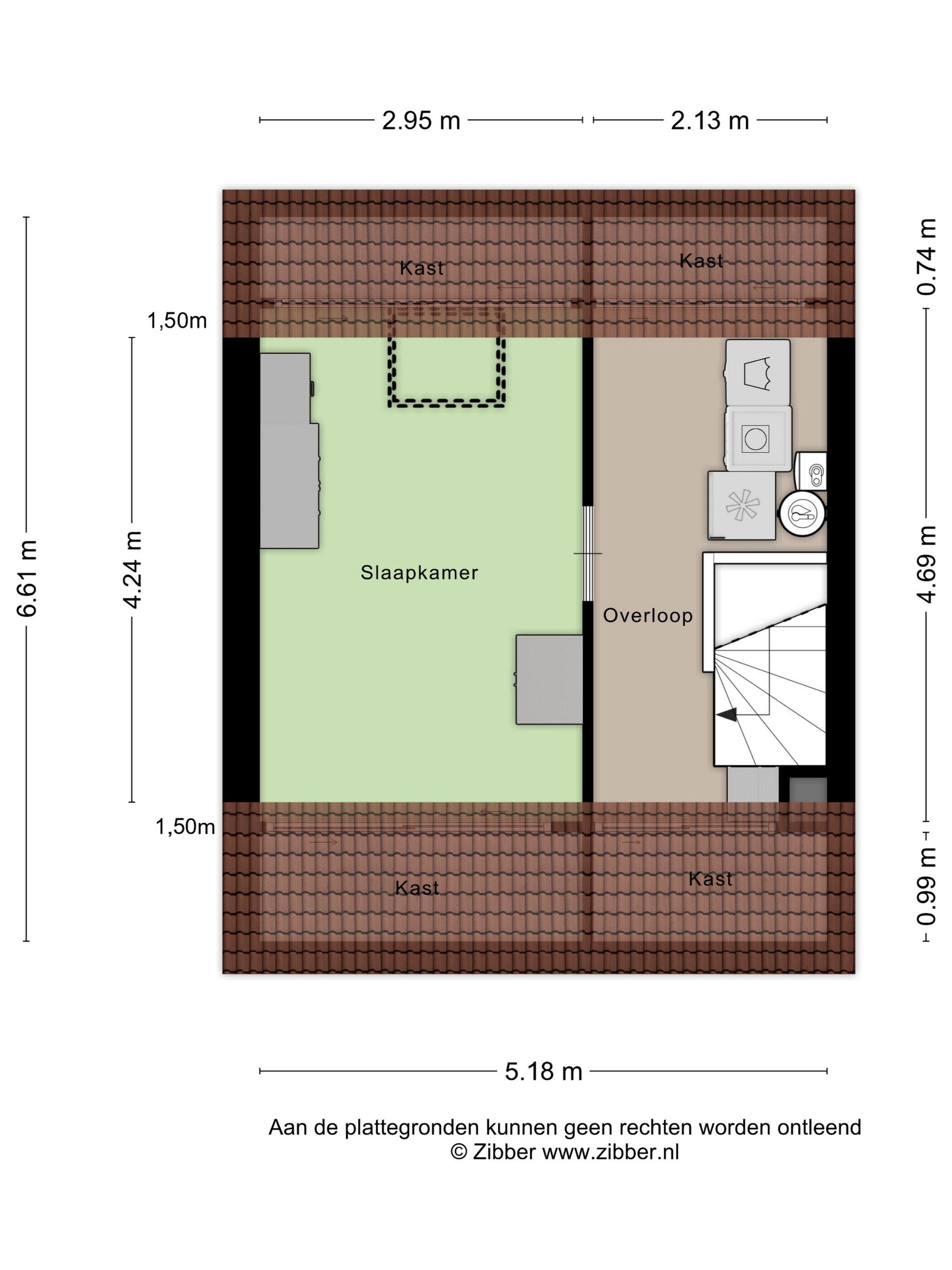
Op de eerste verdieping zijn twee royale slaapkamers te vinden. De slaapkamer aan de achterzijde beslaat de volledige breedte van de woning en kan net als de kamer aan de voorzijde als master bedroom dienen. De moderne badkamer straalt rust en luxe uit met beige tegels, een ligbad, een inloopdouche, een tweede toilet en een wastafelmeubel met kom. Op de tweede verdieping kom je eerst op een ruime overloop met aansluitingen voor de wasmachine en droger. Daarnaast is hier de derde slaapkamer met dakraam, verrassend ruim en voorzien van veel slimme kastruimte.

Tuinieren, Zonnen & Genieten
De achtertuin is een plek om van te genieten! Direct aan de woning is een betegeld terras, ideaal voor een lounge- of eethoek. Verder vind je een stukje gras, groene borders en een houten overkapping met berging. En er is meer: de berging is omgetoverd tot een fraaie praktijkruimte, nu in gebruik als beautysalon. Via de zijkant van de woning is de tuin ook achterom bereikbaar.

Omgeving & Faciliteiten
De woning ligt in een kindvriendelijke wijk van Roosendaal, met speelplekken om de hoek. Scholen, winkels en supermarkten zijn gemakkelijk bereikbaar en ook het openbaar vervoer en uitvalswegen liggen dichtbij. Zo geniet je hier van rust, ruimte én goede verbindingen.

Sfeer & Doelgroep
De woning heeft een moderne en frisse uitstraling, met volop ruimte voor een gezin. Dankzij de drie grote slaapkamers, de zonnige tuin en de praktische praktijkruimte is dit de ideale plek voor jonge gezinnen, thuiswerkers of levensgenieters die houden van gemak en comfort.

Toelichtingsclausule NEN2580:
De Meetinstructie is gebaseerd op de NEN2580. De Meetinstructie is bedoeld om een meer eenduidige manier van meten toe te passen voor het geven van een indicatie van de gebruiksoppervlakte. De Meetinstructie sluit verschillen in meetuitkomsten niet volledig uit, door bijvoorbeeld interpretatieverschillen, afrondingen of beperkingen bij het uitvoeren van de meting.

Plattegronden

Overdracht

Vraagprijs
€ 350.000 k.k.
Status
Verkocht
Aanvaarding
In overleg

Bouw

Object type
Eengezinswoning, hoekwoning
Soort bouw
Bestaande bouw
Bouwjaar
1982
Soort dak
Zadeldak bedekt met pannen

Oppervlakte en inhoud

Woonoppervlakte
103 m²
Perceeloppervlakte
217 m²
Inhoud
365 m³
Externe bergruimte
7 m²

Indeling

Aantal kamers
4 kamers (3 slaapkamers)
Aantal badkamers
1 badkamer
Badkamervoorzieningen
Ligbad, toilet, wastafel, inloopdouche
Aantal woonlagen
3 woonlagen
Voorzieningen
Zonnepanelen

Energie

Energielabel
B
Energielabel registratie
28-02-2016
Isolatie
Muurisolatie, dubbel glas
Verwarming
Cv-ketel
Warm water
Cv-ketel, zonneboiler
Cv ketel
Nefit combiketel gas gestookt uit 2025 (eigendom)

Buitenruimte

Ligging
In woonwijk
Tuin
Achtertuin, voortuin

Bergruimte

Schuur / berging
Vrijstaande houten berging

Garage

Soort garage
Geen garage

Parkeergelegenheid

Soort parkeergelegenheid
Openbaar parkeren

Energieverbruik in Roosendaal

Energielabel deze woning

Energielabel B

Publicatie energielabel: 28-02-2016

Stroomverbruik per jaar

2970 kWh

(Gemiddelde hoekwoning in Roosendaal)

Gasverbruik per jaar

1280 m³

(Gemiddelde hoekwoning in Roosendaal)

* Cijfers zijn afkomstig van het CBS en bedoeld als indicatie en kunnen verschillen voor deze woning

Indicatie hypotheeklasten

Eigen inleg:
Spaargeld / overwaarde

Rente:
Laagste 10-jaars rente

Laagste 10-jaars rente

2,78% - Centraal Beheer - NHG


3,04% - Centraal Beheer - 80%

Laagste 20-jaars rente

3,29% - Centraal Beheer - NHG


3,52% - Centraal Beheer - 80%

Laagste 30-jaars rente

3,41% - Centraal Beheer - NHG


3,7% - Argenta - 80%


Hypotheek:

Bruto maandlasten: € 0 p/m

Netto maandlasten: € 0 p/m

Hoe berekenen we dit?

Het rentepercentage is gebaseerd op de laagste 10 jaars vaste rente voor één hypotheekdeel. De vermelde rente (2.78% met NHG) is gecontroleerd op 27-04-2026. Deze berekening is gebaseerd op een annuïteitenhypotheek die volledig wordt afgelost, waarbij de maandlasten gedurende de gehele looptijd gelijk blijven. De werkelijke rente en netto maandlasten kunnen variëren, afhankelijk van uw persoonlijke situatie en de hypotheekverstrekker. Raadpleeg een financieel adviseur voor een nauwkeurige berekening en advies. Aan deze berekening kunnen geen rechten worden ontleend; het dient enkel als indicatie.

Documentatie

Zonnegrenzen bekijken

Op de kaart

Inwoners in Roosendaal

Cijfers voor postcodegebied 4707

Totaal aantal inwoners
16200 inwoners
Mannen
49%
Vrouwen
51%

Inwoners in Roosendaal

Cijfers voor postcodegebied 4707

tot 15 jaar
15%
15 tot 25 jaar
11%
25 tot 35 jaar
21%
45 tot 65 jaar
26%
65 en ouder
26%

Huishoudens in Roosendaal

Cijfers voor postcodegebied 4707

Eenpersoons zonder kinderen
35%
Meerpersoons zonder kinderen
31%
Huishoudens zonder kinderen
66%

Huishoudens in Roosendaal

Cijfers voor postcodegebied 4707

Huishoudens met één kind
9%
Huishoudens met meerdere kinderen
24%
Huishoudens met kinderen
33%

Woningen in Roosendaal

Cijfers voor postcodegebied 4707

Woningen voor 1945
1%
Woningen tussen 1945 en 1965
1%
Woningen tussen 1965 en 1975
53%
Woningen tussen 1975 en 1985
19%
Woningen tussen 1985 en 1995
13%

Woningen in Roosendaal

Cijfers voor postcodegebied 4707

Woningen tussen 1995 en 2005
4%
Woningen tussen 2005 en 2015
9%
Woningen na 2015
1%
Huurwoningen
50%
Koopwoningen
50%

Overige in Roosendaal

Cijfers voor postcodegebied 4707

Gemiddelde WOZ waarde
€ 201.000,-
Personen onder de 65 met uitkering
9%

Overige in Roosendaal

Cijfers voor postcodegebied 4707

Adressen per km²
2025
Stedelijkheid (schaal 1 op 5)
80%
Postcode kaart 4707 Gemeente kaart roosendaal

Indien u vragen heeft of u wilt een bezichtiging inplannen, dan kunt u gebruik maken van het formulier hiernaast. Er zal daarna op korte termijn contact met u worden opgenomen.

Vakidioten met een passie voor vastgoed

Bij C&R Makelaars draait alles om jou en je woning. Wij zijn een frisse, energieke generatie makelaars met een passie voor mensen en de woningmarkt.

We geloven in een persoonlijke aanpak zonder poespas: eerlijk, transparant en altijd met een flinke dosis enthousiasme. Het verkopen van je huis is een belangrijke stap, en daarom begeleiden we je op een manier die bij jou past, van begin tot eind.

Met onze diepgaande kennis van de lokale markt geven we je waardevol advies dat perfect aansluit bij jouw situatie én dat van potentiële kopers.

Daarnaast staat ons creatieve team van vastgoedmarketeers klaar om jouw woning in de schijnwerpers te zetten. Met slimme en doordachte strategieën zorgen we ervoor dat je huis opvalt en het maximale resultaat behaalt.

Jouw tevredenheid is ons einddoel. We zetten alles op alles om je verwachtingen te overtreffen. Nieuwsgierig naar ons team? Klik op de button hieronder en maak kennis met ons!

Vakidioten met een passie voor vastgoed
Reviews C&R Makelaars

Alkenberg 23, Roosendaal

€ 350.000 k.k. - Verkocht

Helaas, deze woning is verkocht!

Net te laat, deze woning is al verkocht. Laat een zoekopdracht bij ons achter zodat wij u direct kunnen helpen wanneer er nieuw aanbod beschikbaar komt.